ВНИМАНИЕ! Данный объект недвижимости был снят с публикации
Аренда Складское помещение 1522 м² , Некрасова д. 25/2
Описание
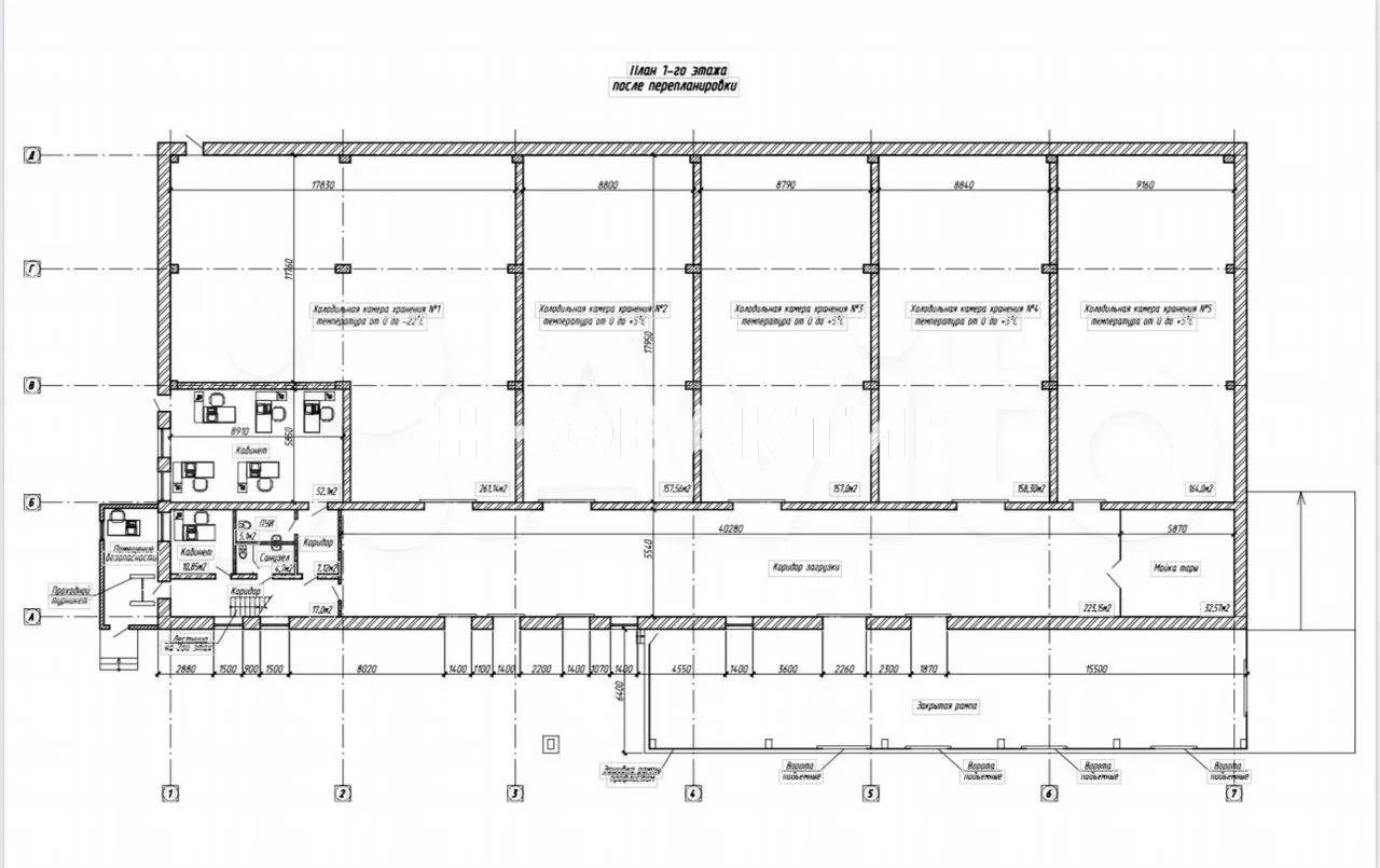
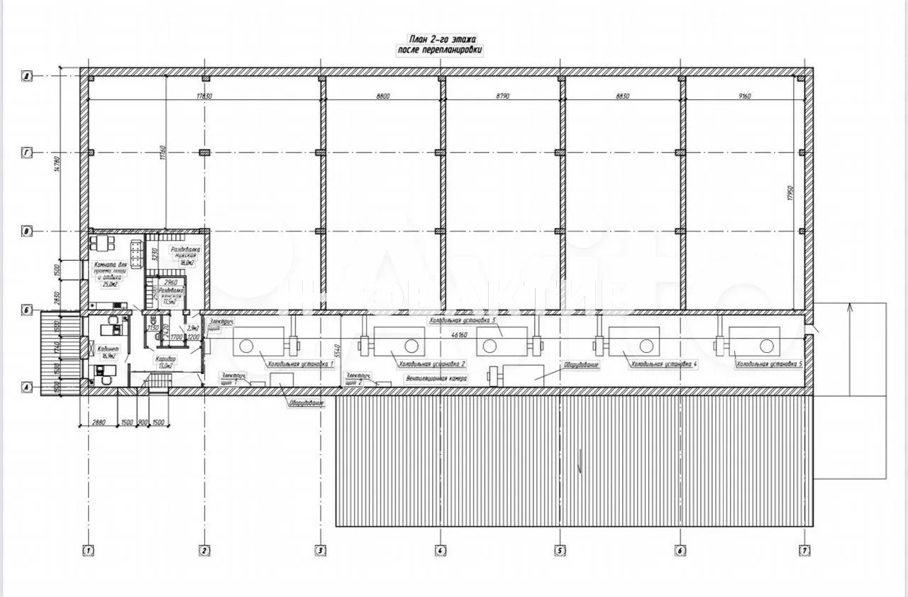
Склад после реконструкции, площадью 1522.4 м2 с высотой потолков 6 м2
6500м3 кубов холодильно-морозильных камер
Оборудован пандусом, топпинговыми полами, воротами для погрузки/разгрузки, собственной газовой котельной для отопления, системой видеонаблюдения и круглосуточной охраной.
Характеристики
- Тип недвижимостиКоммерческая
- Населенный пункт Новокузнецк
- Район Новокузнецкий городской округ
- Адрес Некрасова, д.25/2
- Стоимость заМесяц
- Общая площадь1522 м²
- Вид объектаСкладское помещение
- Этаж1
- Этажность дома1
- Тип парковкиНа улице
- ВходСо двора
- Тип зданияДругой
Задать вопрос
НЕ НАШЛИ ПОДХОДЯЩЕГО ВАРИАНТА?
Свяжитесь с нами
