Продажа Помещение свободного назначения 168.1 м² , Бородина д. 58
Описание
Предлагается к продаже недвижимость с действующим современным медицинским центром.
Срок окупаемости 7 лет!
Преимущества локации:
✔ В 15 минутах езды станция метро «Площадь Маркса».
✔В шаговой доступности остановки ОТ.
✔Удобная транспортная развязка.
✔Имеется собственная, свободная парковка.
Привлекательность объекта:
- Помещение в собственности.
- Более 5 лет в аренде у лицензированного Медицинского центра.
- Месячный арендный поток (МАП): 120,000₽
· Срок окупаемости с учётом ежегодной безусловной индексацией арендной ставки на 15% - 7 лет.
· Качественный ремонт.
· Помещения расположены на 2 стороны здания
Потенциал объекта:
Готовый бизнес - хороший источник пассивного дохода!
Помещение находится в очень востребованном месте.
Отличный вариант для инвестиций!
Действующий арендатор приносит стабильный высокий доход.
Долгосрочный договор аренды.
Описание объекта:
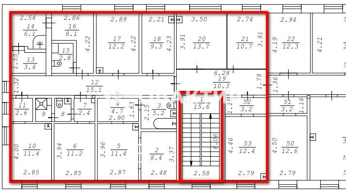
Общая площадь всех помещений – 168,1 кв.м.
Помещения расположены на 2 этаже,3-х этажного административного здания.
Отдельный вход. Есть запасной выход.
· Высота потолков -3,0 м.
· Электрическая мощность- 30 кВт.
· Пожарно-охранная сигнализация.
· Система видеонаблюдения.
· Собственный с/у,
· Почти во всех кабинетах выведены мокрые точки.
· Все коммуникации центральные.
Собственник- юр. лицо.
Все документы в порядке.
Коммерческая недвижимость, коммерческое помещение
Условия сделки:
Быстрый выход на сделку.
Юридическое сопровождение.
Безопасность сделки.
Любые формы оплаты.
Характеристики
- Тип недвижимостиКоммерческая
- Населенный пункт Новосибирск
- Район городской округ Новосибирск
- Адрес Бородина, д.58
- Общая площадь168.1 м²
- Вид объектаПомещение свободного назначения
- Этаж2
- Этажность дома3
- Тип парковкиНа улице
- ВходС улицы
- Тип зданияАдминистративное здание
- Тип НДСНДС не облагается
Задать вопрос
Расположение на карте
Вас также может заинтересовать:
Торговое помещение 41 м²
- Вид объекта:Торговое помещение
- Этаж:-1
- Этажность дома:9
- Вход:С улицы
Помещение свободного назначения 138.1 м²
- Вид объекта:Помещение свободного назначения
- Этаж:-1
- Этажность дома:19
- Вход:С улицы
Помещение свободного назначения 190 м²
ОктябрьскаяРечной вокзал
- Вид объекта:Помещение свободного назначения
- Этажность дома:5
- Вход:С улицы
Помещение свободного назначения 69 м²
ГагаринскаяЗаельцовская
- Вид объекта:Помещение свободного назначения
- Этаж:1
- Этажность дома:8
- Вход:С улицы

