Продажа Здание 1157.7 м² , Советская д. 10
Описание
Продам здание 1157.7 кв.м. на собственном земельном участке!
Преимущества локации:
Помещение находится в центре пгт. Яя
Хороший пешеходный и автомобильный трафик
Остановка автобусов 80 м.
Привлекательность объекта:
Для своего бизнеса или сдачи в аренду
Отличный вариант торговой площади
Полностью функциональное готовое к работе
Потенциал объекта:
В округе считанное количество коммерческих помещений
Можно переформатировать под любой подходящий формат деятельности на ваше усмотрение
Описание объекта:
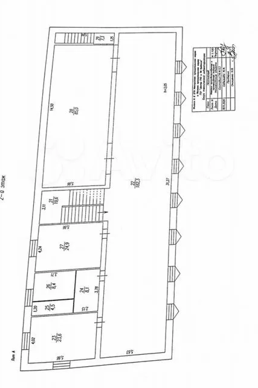
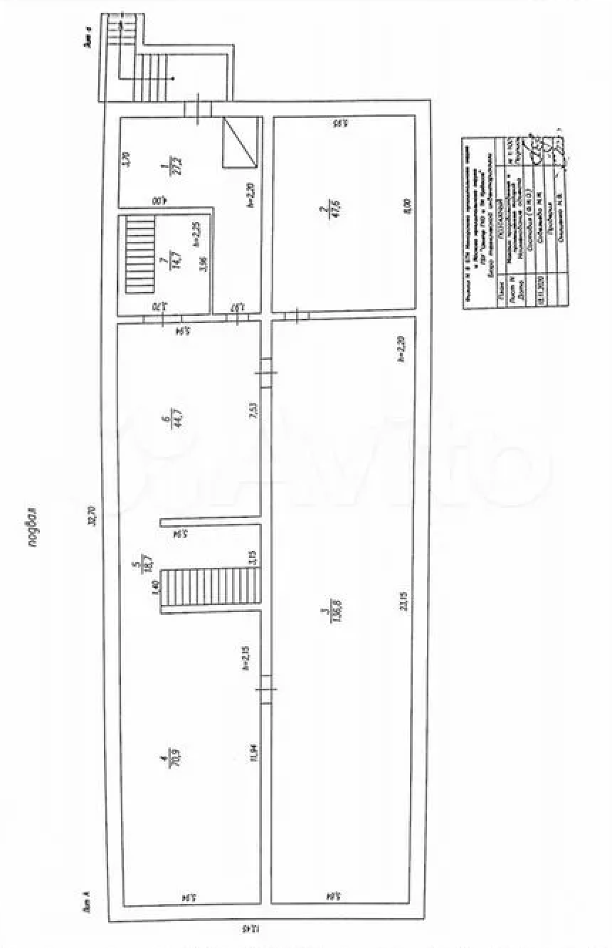
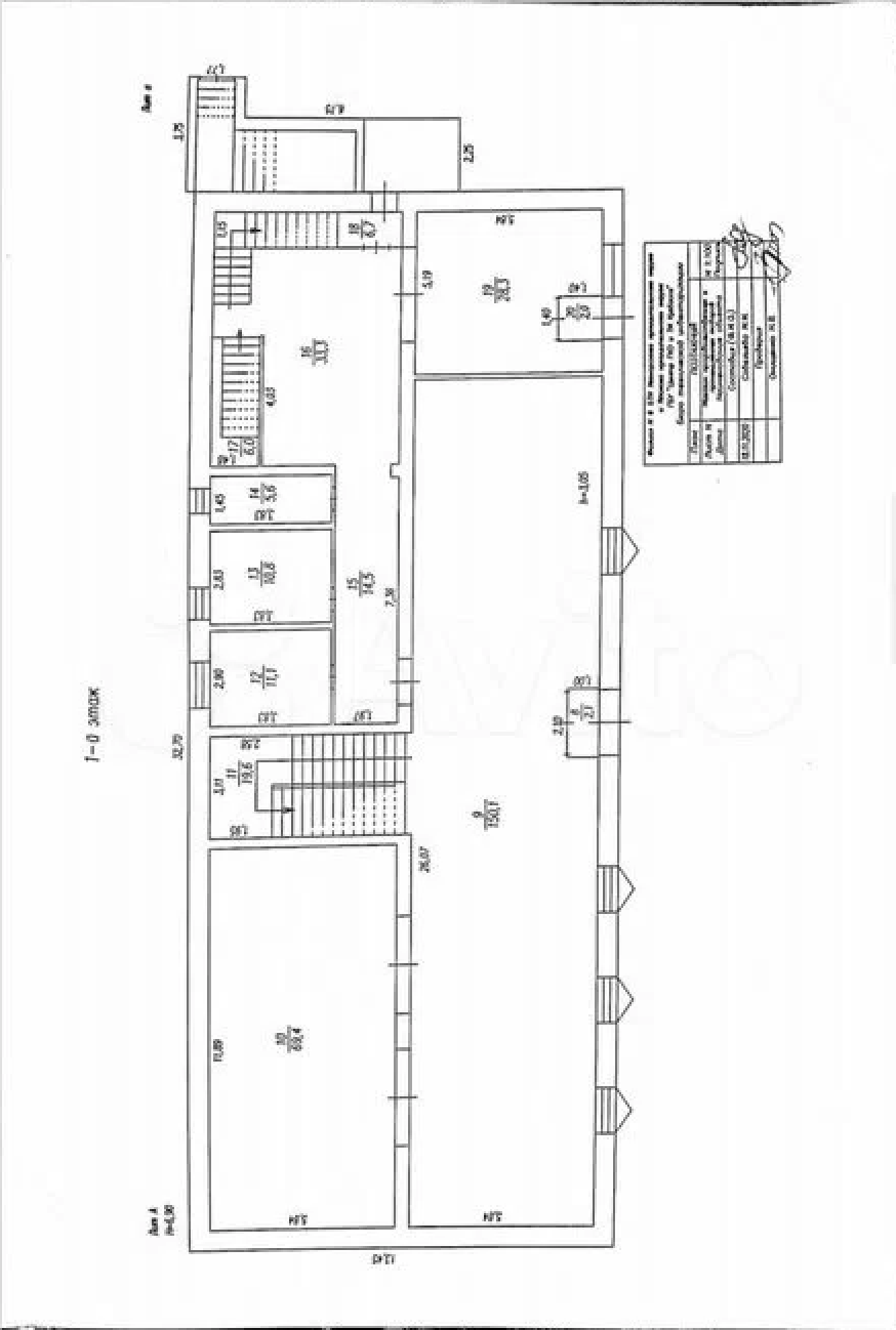
Полная площадь здания 1157.7 кв.м.
Своя парковка
Коммуникации центральные
Условия сделки:
Быстрый выход на сделку
Любые формы оплаты
Возможен обмен
Характеристики
- Тип недвижимостиКоммерческая
- Адрес Советская, д.10
- Общая площадь1157.7 м²
- Вид объектаЗдание
- Этажность дома2
- Тип парковкиНа улице
- ВходС улицы
- Тип зданияТорговый центр
- Тип НДСУпрощенная система налогообложения
Задать вопрос
Расположение на карте
Вас также может заинтересовать:
2
Продажа
Коммерческая земля 11000 сот.
, Россия, Кемеровская область - Кузбасс, Прокопьевский муниципальный округ, село Верх-Егос
35 000 000
- Вид объекта:Коммерческая земля
НЕ НАШЛИ ПОДХОДЯЩЕГО ВАРИАНТА?
Свяжитесь с нами

