Уточняйте наличие и цену у специалиста по недвижимости
Продажа Квартал на Игарской
Описание
Квартира: 1 к 40,30 кв.м., 3 этаж в комплексе Квартал на Игарской, 2 очередь, корп.1 секция 1.2, сдача: 4кв. , этажей: 17, адрес Новосибирск г., Игарская ул., д. 5, Застройщик: Расцветай. Жилой комплекс расположен на улице Игарской в спальном районе Новосибирска. В 10 минутах поездки на автомобиле или на общественном транспорте от ЖК расположен ПКиО "Сосновый бор", где имеются конный клуб и лыжная база, банная усадьа и термальные источники. Здесь можно любоваться живописными видами, наслаждаться свежестью воздуха, гулять и провеодить активно время с семьей или друзьями. и будет состоять из 17 домов. В составе ЖК большой выбор планировок: студии, 1-комнатные, 2-комнатные и 3-комнатные квартиры. Отделка квартир включает: шпатлевка стен под отделку, гидроизоляция в ванных комнатах и санузлах. При строительстве домов применяются современные технологии строительства, позволяющие быстро и качественно возводить крупнопанельные дома. Конструкция - сборная железобенонная с утеплителем, трехслойные стеновые панели. Внутренние перегородки санузлов - газобетонные блоки Сибит. Окна - двухкамерные стеклопакеты на системе из ПВХ-профиля. Входные двери стальные с тепло- и звукоизодяцией. Фасад из тонкослойной штукатурки по системе "мокрый фасад". В домах предусмативается индивидуальный тепловой пункт для снабжения теплом систем отопления и ГВС. Автоматическое погодозависимое регулирование отопления, термостатические клапаны на радиаторах, рециркуляция горячей воды, вертикальная разводка труб. Придомовая территория комплекса - "двор-парк": ландшафтное озеленение по авторскому дизайн-проекту, детские игровые и спортивные площадки, зоны для отдыха взрослого населения, места для прогулок. В относительной близости находятся общеобразовательные школы, колледж и детские сады, поликлиника и медицинские центры, спортивный комплекс с залом для фехтования и бассейном, торгово-развлекательные центры, детский бассейн, спортивные центры, салоны красоты, гипермаркеты и магазины. Автобусная остановка расположена в двух минутах ходьбы. Действуют 5 маршрутов до остановки "пос. Северный" и 1 маршрут до остановки "Игарская". Возможна отделка квартиры "под ключ" за доп оплату.Характеристики
- Тип недвижимостиНовостройки
- Населенный пункт Новосибирск
- Район Калининский
- Адрес улица Игарская, д.5
- Метро Заельцовская (10 мин.)
- Название ЖККвартал на Игарской
- Срок сдачи год2023 г.
- Тип домаПанельный
- Стадия строительствасдан в эксплуатацию
- Срок сдачи квартал4
Задать вопрос
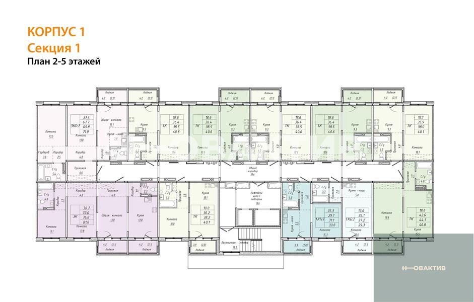
Планировки
№209 1-к.квартира, 40.3 м², 3 эт.
5 800 000
Характеристики
- Количество комнат 1
- Общая площадь 40.3 м²
- Цена за м² 143 921
- Жилая площадь 18.6 м²
- Площадь кухни 9.3 м²
- Этаж 3
- Этажей в доме 17
- Тип санузла Совмещенный
Уточняйте наличие и цену у специалиста по недвижимости
Квартира: 1 к 40,30 кв.м., 3 этаж в комплексе Квартал на Игарской, 2 очередь, корп.1 секция 1.2, сдача: 4кв. , этажей: 17, адрес Новосибирск г., Игарская ул., д. 5, Застройщик: Расцветай. Жилой комплекс расположен на улице Игарской в спальном районе Новосибирска. В 10 минутах поездки на автомобиле или на общественном транспорте от ЖК расположен ПКиО "Сосновый бор", где имеются конный клуб и лыжная база, банная усадьа и термальные источники. Здесь можно любоваться живописными видами, наслаждаться свежестью воздуха, гулять и провеодить активно время с семьей или друзьями. и будет состоять из 17 домов. В составе ЖК большой выбор планировок: студии, 1-комнатные, 2-комнатные и 3-комнатные квартиры. Отделка квартир включает: шпатлевка стен под отделку, гидроизоляция в ванных комнатах и санузлах. При строительстве домов применяются современные технологии строительства, позволяющие быстро и качественно возводить крупнопанельные дома. Конструкция - сборная железобенонная с утеплителем, трехслойные стеновые панели. Внутренние перегородки санузлов - газобетонные блоки Сибит. Окна - двухкамерные стеклопакеты на системе из ПВХ-профиля. Входные двери стальные с тепло- и звукоизодяцией. Фасад из тонкослойной штукатурки по системе "мокрый фасад". В домах предусмативается индивидуальный тепловой пункт для снабжения теплом систем отопления и ГВС. Автоматическое погодозависимое регулирование отопления, термостатические клапаны на радиаторах, рециркуляция горячей воды, вертикальная разводка труб. Придомовая территория комплекса - "двор-парк": ландшафтное озеленение по авторскому дизайн-проекту, детские игровые и спортивные площадки, зоны для отдыха взрослого населения, места для прогулок. В относительной близости находятся общеобразовательные школы, колледж и детские сады, поликлиника и медицинские центры, спортивный комплекс с залом для фехтования и бассейном, торгово-развлекательные центры, детский бассейн, спортивные центры, салоны красоты, гипермаркеты и магазины. Автобусная остановка расположена в двух минутах ходьбы. Действуют 5 маршрутов до остановки "пос. Северный" и 1 маршрут до остановки "Игарская". Возможна отделка квартиры "под ключ" за доп оплату.
Расcчитать ипотеку№210 1-к.квартира, 40.4 м², 3 эт.
5 800 000
Характеристики
- Количество комнат 1
- Общая площадь 40.4 м²
- Цена за м² 143 564
- Жилая площадь 18.6 м²
- Площадь кухни 9.3 м²
- Этаж 3
- Этажей в доме 17
- Тип санузла Совмещенный
Уточняйте наличие и цену у специалиста по недвижимости
Квартира: 1 к 40,40 кв.м., 3 этаж в комплексе Квартал на Игарской, 2 очередь, корп.1 секция 1.2, сдача: 4кв. , этажей: 17, адрес Новосибирск г., Игарская ул., д. 5, Застройщик: Расцветай. Жилой комплекс расположен на улице Игарской в спальном районе Новосибирска. В 10 минутах поездки на автомобиле или на общественном транспорте от ЖК расположен ПКиО "Сосновый бор", где имеются конный клуб и лыжная база, банная усадьа и термальные источники. Здесь можно любоваться живописными видами, наслаждаться свежестью воздуха, гулять и провеодить активно время с семьей или друзьями. и будет состоять из 17 домов. В составе ЖК большой выбор планировок: студии, 1-комнатные, 2-комнатные и 3-комнатные квартиры. Отделка квартир включает: шпатлевка стен под отделку, гидроизоляция в ванных комнатах и санузлах. При строительстве домов применяются современные технологии строительства, позволяющие быстро и качественно возводить крупнопанельные дома. Конструкция - сборная железобенонная с утеплителем, трехслойные стеновые панели. Внутренние перегородки санузлов - газобетонные блоки Сибит. Окна - двухкамерные стеклопакеты на системе из ПВХ-профиля. Входные двери стальные с тепло- и звукоизодяцией. Фасад из тонкослойной штукатурки по системе "мокрый фасад". В домах предусмативается индивидуальный тепловой пункт для снабжения теплом систем отопления и ГВС. Автоматическое погодозависимое регулирование отопления, термостатические клапаны на радиаторах, рециркуляция горячей воды, вертикальная разводка труб. Придомовая территория комплекса - "двор-парк": ландшафтное озеленение по авторскому дизайн-проекту, детские игровые и спортивные площадки, зоны для отдыха взрослого населения, места для прогулок. В относительной близости находятся общеобразовательные школы, колледж и детские сады, поликлиника и медицинские центры, спортивный комплекс с залом для фехтования и бассейном, торгово-развлекательные центры, детский бассейн, спортивные центры, салоны красоты, гипермаркеты и магазины. Автобусная остановка расположена в двух минутах ходьбы. Действуют 5 маршрутов до остановки "пос. Северный" и 1 маршрут до остановки "Игарская". Возможна отделка квартиры "под ключ" за доп оплату.
Расcчитать ипотеку№350 3-к.квартира, 80.8 м², 16 эт.
8 400 000
Характеристики
- Количество комнат 3
- Общая площадь 80.8 м²
- Цена за м² 103 960
- Жилая площадь 36.7 м²
- Площадь кухни 13.8 м²
- Этаж 16
- Этажей в доме 17
- Тип санузла 2
Уточняйте наличие и цену у специалиста по недвижимости
Квартира: 3 к 80,80 кв.м., 16 этаж в комплексе Квартал на Игарской, 2 очередь, корп.1 секция 1.2, сдача: 4кв. , этажей: 17, адрес Новосибирск г., Игарская ул., д. 5, Застройщик: Расцветай. Жилой комплекс расположен на улице Игарской в спальном районе Новосибирска. В 10 минутах поездки на автомобиле или на общественном транспорте от ЖК расположен ПКиО "Сосновый бор", где имеются конный клуб и лыжная база, банная усадьа и термальные источники. Здесь можно любоваться живописными видами, наслаждаться свежестью воздуха, гулять и провеодить активно время с семьей или друзьями. и будет состоять из 17 домов. В составе ЖК большой выбор планировок: студии, 1-комнатные, 2-комнатные и 3-комнатные квартиры. Отделка квартир включает: шпатлевка стен под отделку, гидроизоляция в ванных комнатах и санузлах. При строительстве домов применяются современные технологии строительства, позволяющие быстро и качественно возводить крупнопанельные дома. Конструкция - сборная железобенонная с утеплителем, трехслойные стеновые панели. Внутренние перегородки санузлов - газобетонные блоки Сибит. Окна - двухкамерные стеклопакеты на системе из ПВХ-профиля. Входные двери стальные с тепло- и звукоизодяцией. Фасад из тонкослойной штукатурки по системе "мокрый фасад". В домах предусмативается индивидуальный тепловой пункт для снабжения теплом систем отопления и ГВС. Автоматическое погодозависимое регулирование отопления, термостатические клапаны на радиаторах, рециркуляция горячей воды, вертикальная разводка труб. Придомовая территория комплекса - "двор-парк": ландшафтное озеленение по авторскому дизайн-проекту, детские игровые и спортивные площадки, зоны для отдыха взрослого населения, места для прогулок. В относительной близости находятся общеобразовательные школы, колледж и детские сады, поликлиника и медицинские центры, спортивный комплекс с залом для фехтования и бассейном, торгово-развлекательные центры, детский бассейн, спортивные центры, салоны красоты, гипермаркеты и магазины. Автобусная остановка расположена в двух минутах ходьбы. Действуют 5 маршрутов до остановки "пос. Северный" и 1 маршрут до остановки "Игарская". Возможна отделка квартиры "под ключ" за доп оплату.
Расcчитать ипотеку№351 2-к.квартира, 71.7 м², 16 эт.
7 750 000
Характеристики
- Количество комнат 2
- Общая площадь 71.7 м²
- Цена за м² 108 089
- Жилая площадь 27.3 м²
- Площадь кухни 13.9 м²
- Этаж 16
- Этажей в доме 17
- Тип санузла 2
Уточняйте наличие и цену у специалиста по недвижимости
Квартира: 2 к 71,70 кв.м., 16 этаж в комплексе Квартал на Игарской, 2 очередь, корп.1 секция 1.2, сдача: 4кв. , этажей: 17, адрес Новосибирск г., Игарская ул., д. 5, Застройщик: Расцветай. Жилой комплекс расположен на улице Игарской в спальном районе Новосибирска. В 10 минутах поездки на автомобиле или на общественном транспорте от ЖК расположен ПКиО "Сосновый бор", где имеются конный клуб и лыжная база, банная усадьа и термальные источники. Здесь можно любоваться живописными видами, наслаждаться свежестью воздуха, гулять и провеодить активно время с семьей или друзьями. и будет состоять из 17 домов. В составе ЖК большой выбор планировок: студии, 1-комнатные, 2-комнатные и 3-комнатные квартиры. Отделка квартир включает: шпатлевка стен под отделку, гидроизоляция в ванных комнатах и санузлах. При строительстве домов применяются современные технологии строительства, позволяющие быстро и качественно возводить крупнопанельные дома. Конструкция - сборная железобенонная с утеплителем, трехслойные стеновые панели. Внутренние перегородки санузлов - газобетонные блоки Сибит. Окна - двухкамерные стеклопакеты на системе из ПВХ-профиля. Входные двери стальные с тепло- и звукоизодяцией. Фасад из тонкослойной штукатурки по системе "мокрый фасад". В домах предусмативается индивидуальный тепловой пункт для снабжения теплом систем отопления и ГВС. Автоматическое погодозависимое регулирование отопления, термостатические клапаны на радиаторах, рециркуляция горячей воды, вертикальная разводка труб. Придомовая территория комплекса - "двор-парк": ландшафтное озеленение по авторскому дизайн-проекту, детские игровые и спортивные площадки, зоны для отдыха взрослого населения, места для прогулок. В относительной близости находятся общеобразовательные школы, колледж и детские сады, поликлиника и медицинские центры, спортивный комплекс с залом для фехтования и бассейном, торгово-развлекательные центры, детский бассейн, спортивные центры, салоны красоты, гипермаркеты и магазины. Автобусная остановка расположена в двух минутах ходьбы. Действуют 5 маршрутов до остановки "пос. Северный" и 1 маршрут до остановки "Игарская". Возможна отделка квартиры "под ключ" за доп оплату.
Расcчитать ипотеку№352 1-к.квартира, 40.6 м², 16 эт.
4 750 000
Характеристики
- Количество комнат 1
- Общая площадь 40.6 м²
- Цена за м² 116 995
- Жилая площадь 18.6 м²
- Площадь кухни 9.3 м²
- Этаж 16
- Этажей в доме 17
- Тип санузла Совмещенный
Уточняйте наличие и цену у специалиста по недвижимости
Квартира: 1 к 40,60 кв.м., 16 этаж в комплексе Квартал на Игарской, 2 очередь, корп.1 секция 1.2, сдача: 4кв. , этажей: 17, адрес Новосибирск г., Игарская ул., д. 5, Застройщик: Расцветай. Жилой комплекс расположен на улице Игарской в спальном районе Новосибирска. В 10 минутах поездки на автомобиле или на общественном транспорте от ЖК расположен ПКиО "Сосновый бор", где имеются конный клуб и лыжная база, банная усадьа и термальные источники. Здесь можно любоваться живописными видами, наслаждаться свежестью воздуха, гулять и провеодить активно время с семьей или друзьями. и будет состоять из 17 домов. В составе ЖК большой выбор планировок: студии, 1-комнатные, 2-комнатные и 3-комнатные квартиры. Отделка квартир включает: шпатлевка стен под отделку, гидроизоляция в ванных комнатах и санузлах. При строительстве домов применяются современные технологии строительства, позволяющие быстро и качественно возводить крупнопанельные дома. Конструкция - сборная железобенонная с утеплителем, трехслойные стеновые панели. Внутренние перегородки санузлов - газобетонные блоки Сибит. Окна - двухкамерные стеклопакеты на системе из ПВХ-профиля. Входные двери стальные с тепло- и звукоизодяцией. Фасад из тонкослойной штукатурки по системе "мокрый фасад". В домах предусмативается индивидуальный тепловой пункт для снабжения теплом систем отопления и ГВС. Автоматическое погодозависимое регулирование отопления, термостатические клапаны на радиаторах, рециркуляция горячей воды, вертикальная разводка труб. Придомовая территория комплекса - "двор-парк": ландшафтное озеленение по авторскому дизайн-проекту, детские игровые и спортивные площадки, зоны для отдыха взрослого населения, места для прогулок. В относительной близости находятся общеобразовательные школы, колледж и детские сады, поликлиника и медицинские центры, спортивный комплекс с залом для фехтования и бассейном, торгово-развлекательные центры, детский бассейн, спортивные центры, салоны красоты, гипермаркеты и магазины. Автобусная остановка расположена в двух минутах ходьбы. Действуют 5 маршрутов до остановки "пос. Северный" и 1 маршрут до остановки "Игарская". Возможна отделка квартиры "под ключ" за доп оплату.
Расcчитать ипотеку№356 1-к.квартира, 40.1 м², 16 эт.
4 700 000
Характеристики
- Количество комнат 1
- Общая площадь 40.1 м²
- Цена за м² 117 207
- Жилая площадь 18.1 м²
- Площадь кухни 9.3 м²
- Этаж 16
- Этажей в доме 17
- Тип санузла Совмещенный
Уточняйте наличие и цену у специалиста по недвижимости
Квартира: 1 к 40,10 кв.м., 16 этаж в комплексе Квартал на Игарской, 2 очередь, корп.1 секция 1.2, сдача: 4кв. , этажей: 17, адрес Новосибирск г., Игарская ул., д. 5, Застройщик: Расцветай. Жилой комплекс расположен на улице Игарской в спальном районе Новосибирска. В 10 минутах поездки на автомобиле или на общественном транспорте от ЖК расположен ПКиО "Сосновый бор", где имеются конный клуб и лыжная база, банная усадьа и термальные источники. Здесь можно любоваться живописными видами, наслаждаться свежестью воздуха, гулять и провеодить активно время с семьей или друзьями. и будет состоять из 17 домов. В составе ЖК большой выбор планировок: студии, 1-комнатные, 2-комнатные и 3-комнатные квартиры. Отделка квартир включает: шпатлевка стен под отделку, гидроизоляция в ванных комнатах и санузлах. При строительстве домов применяются современные технологии строительства, позволяющие быстро и качественно возводить крупнопанельные дома. Конструкция - сборная железобенонная с утеплителем, трехслойные стеновые панели. Внутренние перегородки санузлов - газобетонные блоки Сибит. Окна - двухкамерные стеклопакеты на системе из ПВХ-профиля. Входные двери стальные с тепло- и звукоизодяцией. Фасад из тонкослойной штукатурки по системе "мокрый фасад". В домах предусмативается индивидуальный тепловой пункт для снабжения теплом систем отопления и ГВС. Автоматическое погодозависимое регулирование отопления, термостатические клапаны на радиаторах, рециркуляция горячей воды, вертикальная разводка труб. Придомовая территория комплекса - "двор-парк": ландшафтное озеленение по авторскому дизайн-проекту, детские игровые и спортивные площадки, зоны для отдыха взрослого населения, места для прогулок. В относительной близости находятся общеобразовательные школы, колледж и детские сады, поликлиника и медицинские центры, спортивный комплекс с залом для фехтования и бассейном, торгово-развлекательные центры, детский бассейн, спортивные центры, салоны красоты, гипермаркеты и магазины. Автобусная остановка расположена в двух минутах ходьбы. Действуют 5 маршрутов до остановки "пос. Северный" и 1 маршрут до остановки "Игарская". Возможна отделка квартиры "под ключ" за доп оплату.
Расcчитать ипотеку№361 3-к.квартира, 80.8 м², 17 эт.
8 400 000
Характеристики
- Количество комнат 3
- Общая площадь 80.8 м²
- Цена за м² 103 960
- Жилая площадь 36.7 м²
- Площадь кухни 13.8 м²
- Этаж 17
- Этажей в доме 17
- Тип санузла 2
Уточняйте наличие и цену у специалиста по недвижимости
Квартира: 3 к 80,80 кв.м., 17 этаж в комплексе Квартал на Игарской, 2 очередь, корп.1 секция 1.2, сдача: 4кв. , этажей: 17, адрес Новосибирск г., Игарская ул., д. 5, Застройщик: Расцветай. Жилой комплекс расположен на улице Игарской в спальном районе Новосибирска. В 10 минутах поездки на автомобиле или на общественном транспорте от ЖК расположен ПКиО "Сосновый бор", где имеются конный клуб и лыжная база, банная усадьа и термальные источники. Здесь можно любоваться живописными видами, наслаждаться свежестью воздуха, гулять и провеодить активно время с семьей или друзьями. и будет состоять из 17 домов. В составе ЖК большой выбор планировок: студии, 1-комнатные, 2-комнатные и 3-комнатные квартиры. Отделка квартир включает: шпатлевка стен под отделку, гидроизоляция в ванных комнатах и санузлах. При строительстве домов применяются современные технологии строительства, позволяющие быстро и качественно возводить крупнопанельные дома. Конструкция - сборная железобенонная с утеплителем, трехслойные стеновые панели. Внутренние перегородки санузлов - газобетонные блоки Сибит. Окна - двухкамерные стеклопакеты на системе из ПВХ-профиля. Входные двери стальные с тепло- и звукоизодяцией. Фасад из тонкослойной штукатурки по системе "мокрый фасад". В домах предусмативается индивидуальный тепловой пункт для снабжения теплом систем отопления и ГВС. Автоматическое погодозависимое регулирование отопления, термостатические клапаны на радиаторах, рециркуляция горячей воды, вертикальная разводка труб. Придомовая территория комплекса - "двор-парк": ландшафтное озеленение по авторскому дизайн-проекту, детские игровые и спортивные площадки, зоны для отдыха взрослого населения, места для прогулок. В относительной близости находятся общеобразовательные школы, колледж и детские сады, поликлиника и медицинские центры, спортивный комплекс с залом для фехтования и бассейном, торгово-развлекательные центры, детский бассейн, спортивные центры, салоны красоты, гипермаркеты и магазины. Автобусная остановка расположена в двух минутах ходьбы. Действуют 5 маршрутов до остановки "пос. Северный" и 1 маршрут до остановки "Игарская". Возможна отделка квартиры "под ключ" за доп оплату.
Расcчитать ипотеку№362 2-к.квартира, 71.6 м², 17 эт.
7 700 000
Характеристики
- Количество комнат 2
- Общая площадь 71.6 м²
- Цена за м² 107 542
- Жилая площадь 27.3 м²
- Площадь кухни 13.9 м²
- Этаж 17
- Этажей в доме 17
- Тип санузла 2
Уточняйте наличие и цену у специалиста по недвижимости
Квартира: 2 к 71,60 кв.м., 17 этаж в комплексе Квартал на Игарской, 2 очередь, корп.1 секция 1.2, сдача: 4кв. , этажей: 17, адрес Новосибирск г., Игарская ул., д. 5, Застройщик: Расцветай. Жилой комплекс расположен на улице Игарской в спальном районе Новосибирска. В 10 минутах поездки на автомобиле или на общественном транспорте от ЖК расположен ПКиО "Сосновый бор", где имеются конный клуб и лыжная база, банная усадьа и термальные источники. Здесь можно любоваться живописными видами, наслаждаться свежестью воздуха, гулять и провеодить активно время с семьей или друзьями. и будет состоять из 17 домов. В составе ЖК большой выбор планировок: студии, 1-комнатные, 2-комнатные и 3-комнатные квартиры. Отделка квартир включает: шпатлевка стен под отделку, гидроизоляция в ванных комнатах и санузлах. При строительстве домов применяются современные технологии строительства, позволяющие быстро и качественно возводить крупнопанельные дома. Конструкция - сборная железобенонная с утеплителем, трехслойные стеновые панели. Внутренние перегородки санузлов - газобетонные блоки Сибит. Окна - двухкамерные стеклопакеты на системе из ПВХ-профиля. Входные двери стальные с тепло- и звукоизодяцией. Фасад из тонкослойной штукатурки по системе "мокрый фасад". В домах предусмативается индивидуальный тепловой пункт для снабжения теплом систем отопления и ГВС. Автоматическое погодозависимое регулирование отопления, термостатические клапаны на радиаторах, рециркуляция горячей воды, вертикальная разводка труб. Придомовая территория комплекса - "двор-парк": ландшафтное озеленение по авторскому дизайн-проекту, детские игровые и спортивные площадки, зоны для отдыха взрослого населения, места для прогулок. В относительной близости находятся общеобразовательные школы, колледж и детские сады, поликлиника и медицинские центры, спортивный комплекс с залом для фехтования и бассейном, торгово-развлекательные центры, детский бассейн, спортивные центры, салоны красоты, гипермаркеты и магазины. Автобусная остановка расположена в двух минутах ходьбы. Действуют 5 маршрутов до остановки "пос. Северный" и 1 маршрут до остановки "Игарская". Возможна отделка квартиры "под ключ" за доп оплату.
Расcчитать ипотекуРасположение на карте
Вас также может заинтересовать:
ЖК FOR STARS Дом 1
Октябрьская
- Студия от 5 500 000
- 1-к.квартира от 5 500 000
- 2-к.квартира от 7 300 000
- 3-к.квартира от 9 450 000
- 4-к.квартира от 12 850 000
ЖК "Атом" Дом 1
- 1-к.квартира от 3 600 000
- 2-к.квартира от 3 840 000
- 3-к.квартира от 6 150 000
ЖК «Эверест»
Речной вокзал
- 1-к.квартира от 4 202 000
- 3-к.квартира от 7 515 000
- 4-к.квартира от 15 030 000
NOVA APART(Нова-апарт) Дом 1
Октябрьская
- Студия от 3 800 000
- 1-к.квартира от 4 830 000
- 2-к.квартира от 7 640 000

