Аренда Торговое помещение 460 м² , Пушкина д. 79к1
Описание
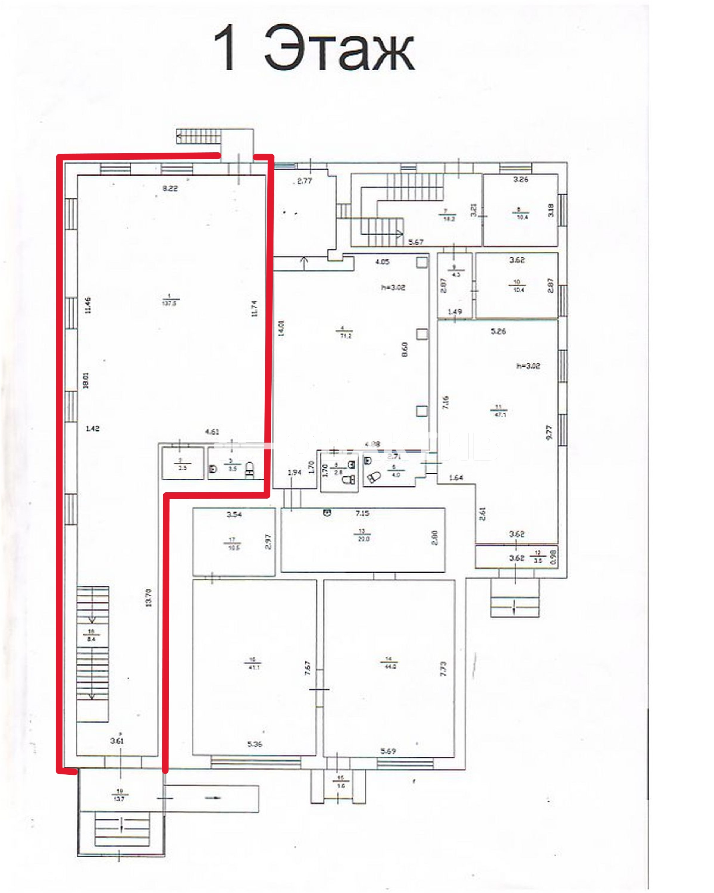
Просторные светлые помещения на первой линии ул. Пушкина! Комиссия арендатора 0%
Преимущества локации:
·Центр г. Искитим, высокий пешеходный трафик
·Автобусная остановка возле входа
·Пешая доступность от вокзала
·Удобная транспортная развязка
·Вместительная парковка
Привлекательность объекта:
·Первый и второй этаж
·Светлые просторные помещения
·Доступна аренда этажей по отдельности
·Возможность размещения рекламы на фасаде
Описание объекта:
·Помещение правильной формы, опрятное, капитальное, кирпичное
·Все коммуникации централизованные: канализация, холодная, горячая вода, отопление
·Идеально подойдет для мебельного салона, магазина одежды, фитнес-центра, универсама и многих других видов деятельности!
·Пол керамогранит
·Коммерческая недвижимость
Условия сделки:
·Быстрый выход на сделку, оперативное согласование любых вопросов
·Любые формы оплаты
·Юридическое сопровождение
Характеристики
- Тип недвижимостиКоммерческая
- Населенный пункт Искитим
- Район городской округ Искитим
- Адрес Пушкина, д.79к1
- Стоимость заМесяц
- Общая площадь460 м²
- Вид объектаТорговое помещение
- Этаж1
- Этажность дома2
- Тип парковкиНа улице
- ВходС улицы
- Тип зданияАдминистративное здание
- Тип НДСНДС не облагается
Задать вопрос
Расположение на карте
Вас также может заинтересовать:
Помещение свободного назначения 272 м²
- Вид объекта:Помещение свободного назначения
- Этаж:1
- Этажность дома:2
- Вход:С улицы

