Аренда Помещение свободного назначения 425 м² , Карла Маркса д. 144
Описание
Комиссии для арендатора нет!
Преимущества локации:
· Центральная улица города
· Большой пешеходный и автомобильный трафик
Привлекательность объекта:
· На первом этаже якорный арендатор Магнит
· Отдельный вход с улицы
· Возможность перепланировки
· Много парковочных мест
Потенциал объекта:
· Торговая площадь
· Свободного назначения (офис, юридические услуги)
· Спортивный зал, компьютерный зал
· Пункт выдачи заказов
· Переформатировать под любой подходящий формат деятельности на ваше усмотрение
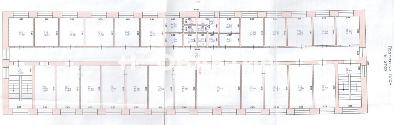
Описание объекта:
· Отдельное Помещение на 2 этаже в 2-х этажном здании
· Два отдельных входа (можно через Магнит, на выбор)
· На сегодня на втором этаже реализована офисная система помещений, с ремонтом, полностью заполнена арендаторами
· Мощность 142 Квт
· Помещение свободного назначения
· Коммерческая недвижимость, коммерческое помещение
Характеристики
- Тип недвижимостиКоммерческая
- Населенный пункт Славгород
- Район муниципальный округ Славгород
- Адрес Карла Маркса, д.144
- Стоимость заМесяц
- Общая площадь425 м²
- Вид объектаПомещение свободного назначения
- Этаж2
- Этажность дома2
- Тип парковкиНа улице
- ВходС улицы
- Тип зданияТорговый центр
- Тип НДСНДС не облагается
Задать вопрос
Расположение на карте
Вас также может заинтересовать:
Помещение свободного назначения 598.4 м²
- Вид объекта:Помещение свободного назначения
- Этаж:1
- Этажность дома:5
- Вход:С улицы

