Аренда Помещение свободного назначения 105.2 м² , Коммунальный переулок д. 2
Описание
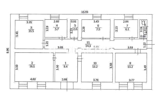
Аренда помещения свободного назначения 105,2 м²
Лучшее предложение!!! Успей Арендовать по суперцене!
Комиссия для арендатора 0%
Преимущества локации:
Удобная транспортная развязка и подъездные пути
Остановка общественного транспорта расположена в пешей доступности
Отдельно стоящее здание
Помещение находится внутри жилого массива, рядом расположены несколько школ, гимназия и техникум, а также множество других различных сфер услуг, которыми пользуется местное население
Привлекательность объекта:
Помещение подойдет практически под любой вид деятельности
1 этаж, отдельный вход
Земельный участок в аренде на 49 лет с правом выкупа
Отлично подойдет в качестве арендного бизнеса
Перспективная, развивающаяся локация
Описание объекта:
Помещение свободного назначения 105,2кв.м
Высота потолка 3м
Все коммуникации центральные
Имеется парковка перед зданием
Характеристики
- Тип недвижимостиКоммерческая
- Населенный пункт Райчихинск
- Район городской округ Райчихинск
- Адрес Коммунальный переулок, д.2
- Стоимость заМесяц
- Общая площадь105.2 м²
- Вид объектаПомещение свободного назначения
- Этаж1
- Этажность дома1
- Тип парковкиНа улице
- ВходС улицы
- Тип зданияДругой
- Тип НДСНДС не облагается

