Продажа Торговое помещение 974.8 м² , Карла Маркса д. 144
Описание
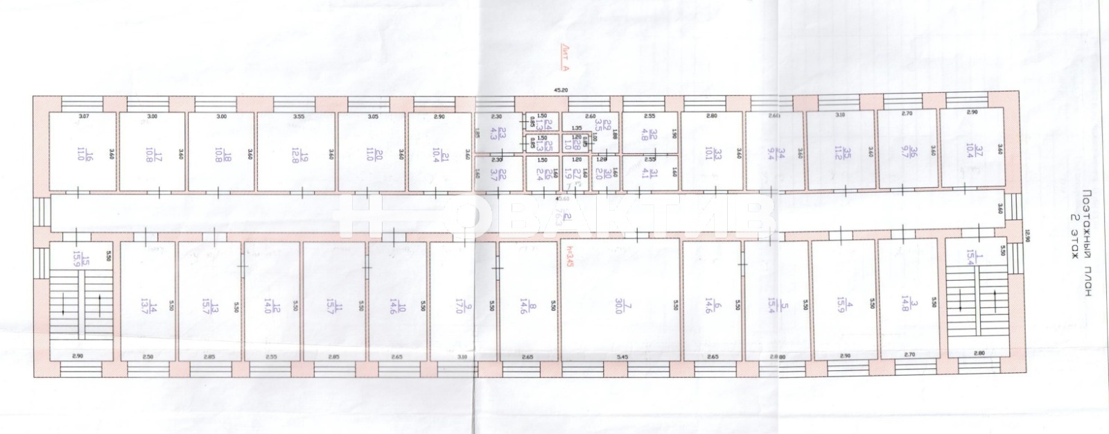
Продажа помещения торгового назначения 974,8 м²
Комиссии для покупателя нет!
Преимущества локации:
· Высокий трафик
· Помещение находится на пересечении двух главных магистралей в городе
· Трафик за счёт Магнит (1 этаж)
· Удобная парковка
Привлекательность объекта:
- Действующий МАП 300 т..р+
· Якорный арендатор Магнит на первом этаже - 425 м²
· Второй этаж сдан полностью, под офисы стабильных компаний
· Земельный участок 22,24 сотки в собственности
· Отдельный вход
· Готовый арендный бизнес
Потенциал объекта:
· Выгодный инвестиционный проект с уже имеющимся арендным потоком и потенциалом его увеличения
· Дополнительные земельные участки с гаражами, которую можно сдать в аренду
· Гаражи общей площадью 314 м²
Описание объекта:
· Высокие потолки 3,3 метра
· Мощность 142 кВт
· Коммерческая недвижимость, коммерческое помещение
Характеристики
- Тип недвижимостиКоммерческая
- Населенный пункт Славгород
- Район муниципальный округ Славгород
- Адрес Карла Маркса, д.144
- Общая площадь974.8 м²
- Вид объектаТорговое помещение
- Этаж1
- Этажность дома2
- Тип парковкиНа улице
- ВходС улицы
- Тип зданияТорговый центр
- Тип НДСНДС не облагается

