Продажа Помещение свободного назначения 45 м² , Фёдора Горячева д. 57
Описание
Комиссии для покупателя нет!
Привлекательность объекта:
· Цокольный этаж. Отдельный вход 24/7
· Автопарковка возле здания
· В шаговой доступности остановка общественного автотранспорта
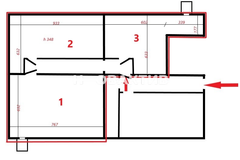
· Функциональная планировка
· Удачная локация
· Отсутствие ограничений вида деятельности
Потенциал объекта:
· ВЫСОКИЙ ТРАФИК И СПРОС НА ТОВАРЫ И УСЛУГИ!
· Подходит под любой вид деятельности
· Планировка позволяет удачно разместиться любому бизнесу
· Возможности использования:
Ногтевые студии, любая другая бьюти-индустрия
Парикмахерские услуги
Салон цветов и подарков
Офис для сотрудников частной или юридической компании, организации
Пункт хранения и выдачи товаров с маркетплейсов
Интернет магазин с личным брэнд офисом и пунктом выдачи товаров
Сервисные центры, ювелирные мастерские
Ломбард
Описание объекта:
· Цокольный этаж жилого здания
· Площадь 45м2
· Отдельный вход с торца дома
· Мокрая точка в помещении
· Функциональная планировка
· В помещении предчистовой ремонт
· Центральное водоснабжение, отопление и канализация
· Имеется парковка
Условия сделки:
· Быстрый выход на сделку
· Любые формы оплаты
Характеристики
- Тип недвижимостиКоммерческая
- Населенный пункт Новосибирск
- Район городской округ Новосибирск
- Адрес Фёдора Горячева, д.57
- Общая площадь45 м²
- Вид объектаПомещение свободного назначения
- Этаж-1
- Этажность дома4
- Тип парковкиНа улице
- ВходС улицы
- Тип зданияЖилой дом
- Тип НДСНДС не облагается
Задать вопрос
Вас также может заинтересовать:
Помещение свободного назначения 58.6 м²
- Вид объекта:Помещение свободного назначения
- Этаж:-1
- Этажность дома:17
- Вход:С улицы
Офисное помещение 15 м²
- Вид объекта:Офисное помещение
- Этаж:5
- Этажность дома:5
- Вход:С улицы
Помещение свободного назначения 80.3 м²
- Вид объекта:Помещение свободного назначения
- Этаж:-1
- Этажность дома:17
- Вход:С улицы
Помещение свободного назначения 19 м²
- Вид объекта:Помещение свободного назначения
- Этаж:-1
- Этажность дома:9
- Вход:Со двора
