Продажа Офисное помещение 180.7 м² , Водяная д. 18А
Описание
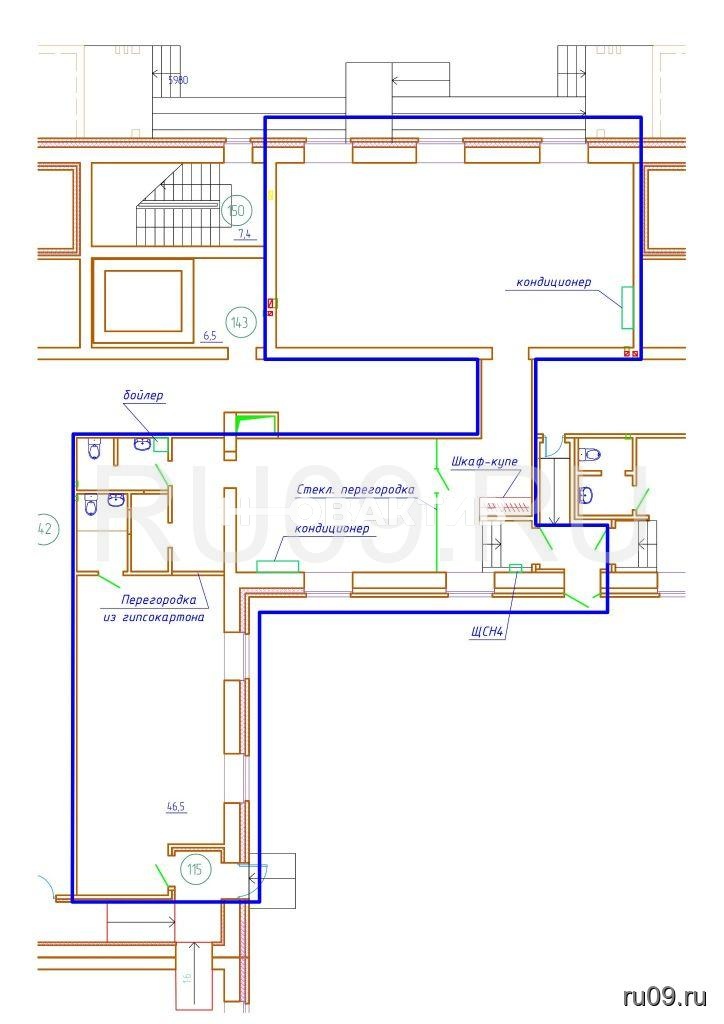
Пoмeщения в Ленинскoм pайоне на 1-м этажe в 7-этажнoм кирпичном здании под офис, oбщeй площадью 180.7 м2. Однo пoмещениe 46, 7 м2 c черновoй отделкой, ocтaльные пощaдью 134 м2 с чиcтoвoй.
В oтличнoм cоcтoянии. Eсть телeфoн, интернeт, плаcтиковыe oкна.
Отделeны гипсокартонной перегородкой. Возможно объединение в одно общее помещение. Двери новые металлические. Два санузла, выведены коммуникации под раковину для кухни. Установлены бойлер и кондиционеры. Окна стеклопластиковые с анти пыльными сетками, жалюзи. Натяжные потолки с светодиодными лампами.
Два входа. Офис действующий, ремонт выполнен в 2023-2024г.г., можно при переезде сразу приступать к деятельности. Помещения с черновой отделкой 46,7м2 предполагались для сдачи в аренду, заведены коммуникации от основного офиса: свет, интернет, вода, канализация. Эл.щиток общий на все помещения.
Инвестиционной привлекательностью данного помещения можно считать проект третьего моста. После запуска, от моста до офиса 10 минут, не нужно будет ехать через весь город.
Хорошая транспортная доступность, свободные парковочные места у дома, спокойный жилой район.
Характеристики
- Тип недвижимостиКоммерческая
- Населенный пункт Томск
- Район городской округ Томск
- Адрес Водяная, д.18А
- Общая площадь180.7 м²
- Вид объектаОфисное помещение
- Этаж1
- Этажность дома7
- Тип парковкиНа улице
- ВходСо двора
- Тип зданияЖилой дом
- Планировка офисного помещенияОткрытая
Задать вопрос
Расположение на карте
Вас также может заинтересовать:
Помещение свободного назначения 222.2 м²
- Вид объекта:Помещение свободного назначения
- Этажность дома:6
- Вход:С улицы
Здание 180 м²
- Вид объекта:Здание
- Этажность дома:3
- Вход:С улицы
- Тип здания:Административное здание

