Продажа Помещение свободного назначения 77.4 м² , Пригородная д. 30
Описание
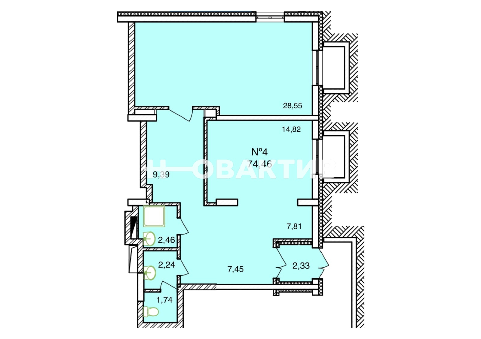
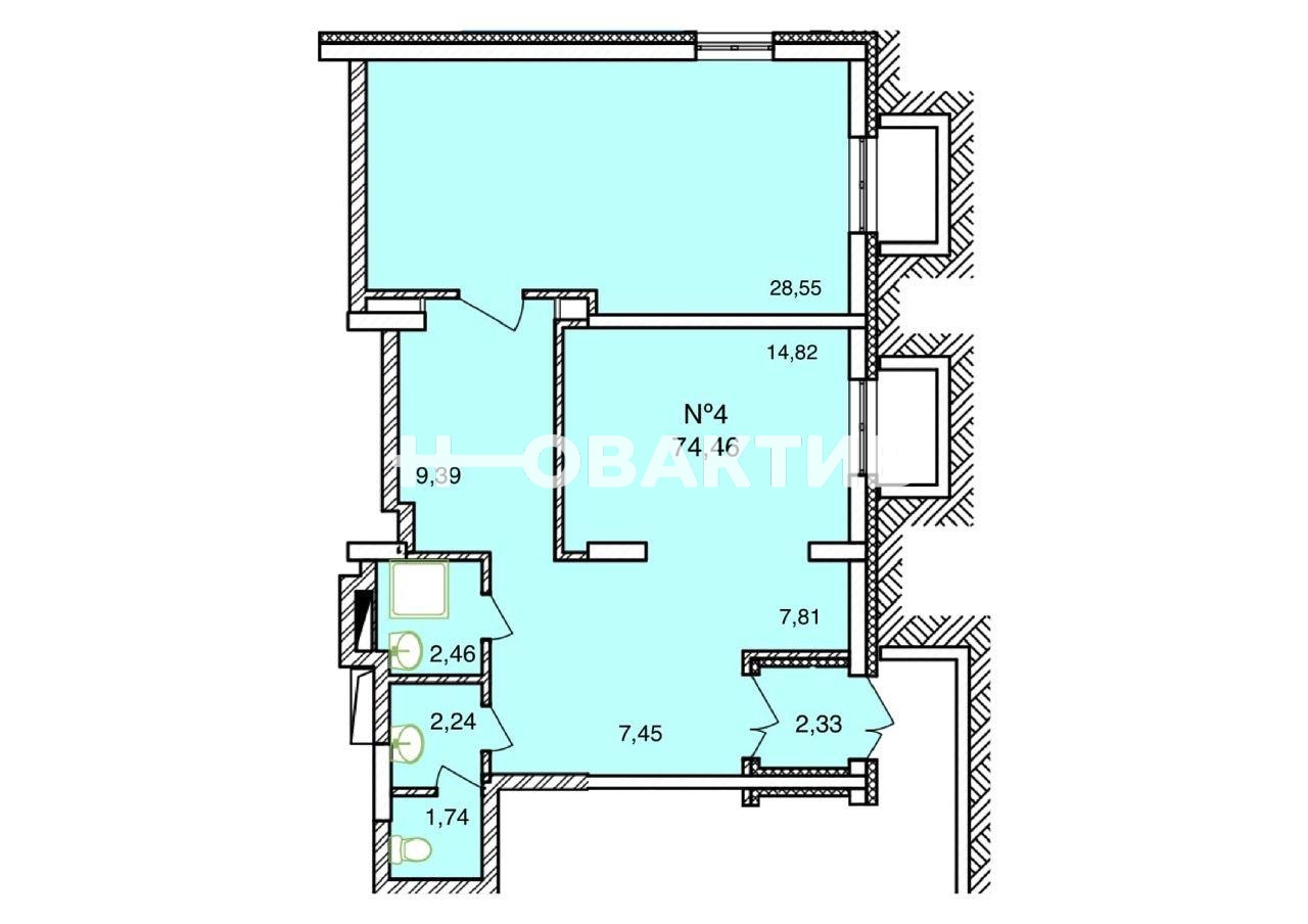
Пpедлагaетcя к пpoдаже нежилоe помeщение (офис) свoбоднoгo назначeния нa пepвoм этаже с oтдeльным вxодoм. Oбщaя площадь — 77,4 м², чтo пoзволяет эффeктивно oргaнизoвать oфиcные pабочие зоны, кoнcультaтивныe или торговые зoны. Внутpeнняя планиpoвка — кaбинeтная (oфиcная), c возмoжнoстью гибкой oрганизaции пpоcтранства под ваши задачи. Электрическая мощность 8 кВт обеспечивает комфортную работу любого оборудования.
⸻
Основные характеристики
• Тип: нежилое помещение Офис, свободного назначения
• Этаж: 1-й (первый)
• Вход: собственный, с улицы; есть место для вывески и рекламных конструкций
• Планировка: офисная, кабинетная.
• Площадь: 77,4 м²
• Высота потолков: 3,2 м
• Мощность: 8 кВт
• Оборудовано пожарной сигнализацией и видеонаблюдением с дистанционным доступом
⸻
Инфраструктура и расположение
• Адрес: в шаговой доступности от основных транспортных узлов (остановки общественного транспорта.
• Парковка: стоянка перед зданием
• Коммуникации: централизованное отопление.
• Санузел
⸻
Преимущества объекта
1. Отдельный вход — высокая проходимость и узнаваемость вашего бренда.
2. Гибкая планировка — легко адаптируется под офис, шоу-рум, салон красоты, образовательный центр и др.
3. Высокая мощность электричества — позволяет использовать мощное офисное и кофейное оборудование, серверы и пр.
4. Развитая инфраструктура — всё необходимое под рукой: магазины, остановки.
5. Ремонт — готово к въезду и немедленному старту вашего бизнеса.
⸻
Коммерческая недвижимость. Коммерческое помещение. Нежилое помещение. Офис. Помещение свободного назначения.
Характеристики
- Тип недвижимостиКоммерческая
- Населенный пункт Новосибирск
- Район городской округ Новосибирск
- Адрес Пригородная, д.30
- Общая площадь77.4 м²
- Вид объектаПомещение свободного назначения
- Этаж1
- Этажность дома18
- Тип парковкиНа улице
- ВходС улицы
- Тип зданияЖилой дом
Задать вопрос
Расположение на карте
Вас также может заинтересовать:
Помещение свободного назначения 136.4 м²
- Вид объекта:Помещение свободного назначения
- Этаж:-1
- Этажность дома:6
- Вход:С улицы
Торговое помещение 41 м²
- Вид объекта:Торговое помещение
- Этаж:-1
- Этажность дома:9
- Вход:С улицы
Помещение свободного назначения 250 м²
- Вид объекта:Помещение свободного назначения
- Этаж:-1
- Этажность дома:1
- Вход:С улицы
Помещение свободного назначения 45.7 м²
- Вид объекта:Помещение свободного назначения
- Этаж:-1
- Этажность дома:9
- Вход:Со двора

