Уточняйте наличие и цену у специалиста по недвижимости
Продажа Коттедж 195 м² на участке 15 сот. , улица Зеленая д. 16А
Описание
В продаже 2-х этажный коттедж 195 м2 в пос. Емельяновский, Новосибирской области.
Описание земельного участка:
Площадь участка - 15 сот., по факту больше.
Категория земель: земли населенных пунктов.
Вид разрешенного использования: Для ведения личного подсобного хозяйства
На территории есть вместительный гараж, баня отапливается круглогодично.
Высажены различные плодовоягодные растения, деревья, цветы и т.д.
Описание коттеджа:
Общая площадь - 195 м2, жилая площадь
Отопление - газовый котёл (топливо - газ и дизель) и дублирующее электрический котёл.
Водоснабжение - централизованное.
Канализация - автономная, септик на 30 м3.
Электричество - центральное (мощность - 15кВТ)
Вся мебель и бытовая техника остается.
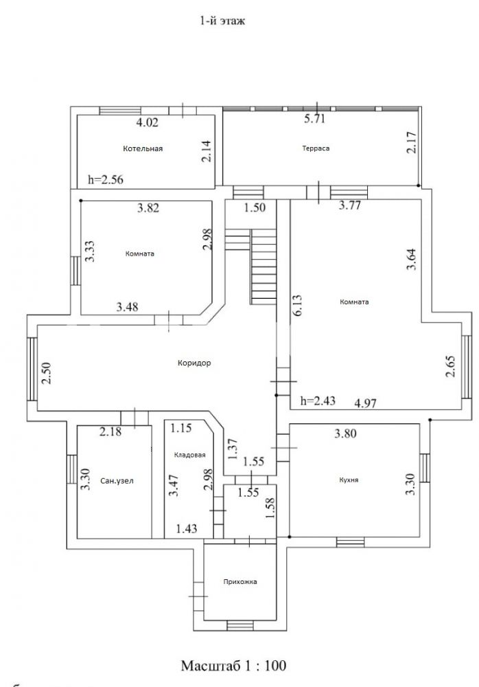
1этаж:
На этаже: Тамбур, санузел и ванная комната, кухня, гостиная, 1 жилая комната.
На полу в санузле плитка, в остальных комнатах ламинат. Окна пластиковые.
2 этаж:
На этаже: Две жилые комнаты, в каждой из них есть своя гардеробная, санузел
Характеристика коттеджа и придомовой территории:
Материал коттеджа - стены брус 150мм
Фундамент Ленточный
Территория коттеджа огорожена.
Преимущества локации:
10 мин на машине до железнодорожной станции Сокур
30 мин до города на машине.
В шаговой доступности расположены:
-Емельяновкая среднеобразовательная школа с дошкольным образованием.
-магазин и дом культуры в 5 мин пешком.
Дополнительная информация:
Быстрый выход на сделку.
Подходит почти все формы расчета.
Возможен торг!
Новактив - агентство недвижимости:
Любые сделки с недвижимостью - надежно, быстро, комфортно!
Работаем только по Эксклюзивному договору.
С Вами работает Команда профессионалов.
Характеристики
- Тип недвижимостиДома, дачи
- Населенный пункт Емельяновский
- Тип объектаКоттедж
- Тип домадеревянный
- Общая площадь195 м²
- Площадь участка15 сот.
- Количество этажей2
- Подвальное помещениеПогреб
- Год постройки2008
- Материал стенБрус
- Тип участкафермерский
- Санузелв доме
- ДушВ доме
- УдобстваВ доме
