Продажа ЖК SMART AVENUE Дом 2
Описание
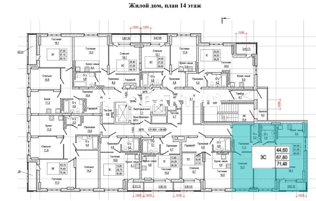
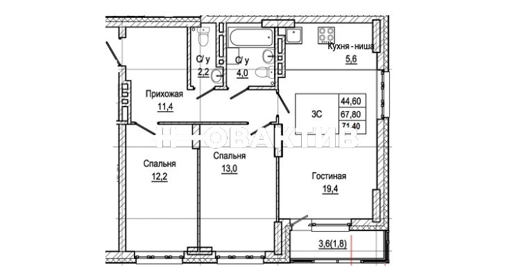
Предлагается к продаже 3 комнатная студия под самоотделку в ЖК Смарт Авеню в 10 ти минутах езды от метро Октябрьская!
Описание квартиры:
Общая площадь 71.4 м2, жилая 44.6 м2, кухня 5.8 м2
Удобная планировка с изолированными комнатами, комфортной кухней гостиной, лоджией 3.6 м2, с двумя санузлами.
Высота потолков 2.72 м.
Квартира расположена на 14 ом этаже 16 ти этажного дома.
В квартире выполнена стяжка пола с гидро и звукоизоляцией, стены выровнены и подготовлены под поклейку обоев, установлена качественная входная дверь.
Характеристика дома и придомовой территории:
Материал дома кирпич на монолитном каркасе с мокрой штукатуркой и кирпичной облицовкой.
Подъезд оборудован домофоном с видеонаблюдением.
На первом этаже расположена колясочная.
Два лифта грузопассажирских.
Двор оборудован благоустроенной современной закрытой детской и спортивной площадками.
Для владельцев автотранспорта предусмотрены открытые наземные места и подземный паркинг на 49 машин.
Спуск в подземный паркинг на лифте.
Закрытая охраняемая территория.
Преимущества локации:
Дом расположен в 10 ти минутах езды на автомобиле до станций Метро Октябрьская и Метро Речной вокзал.
Для прогулок и отдыха на свежем воздухе жители комплекса выбирают сквер ГПНТБ в 10 минутах езды и Михайловскую набережную.
В 15 минутах ходьбы расположены железнодорожные станции Новосибирск Южный и Инструментальный.
15 минут на общественном транспорте до делового и культурного центра Новосибирска.
В шаговой доступности расположены:
остановки общественного транспорта;
торговые и развлекательные центры;
средние общеобразовательные школы 97, 75 и 2;
частное общеобразовательное учреждение школа Таланъ;
детские сады 234, 303 и 449;
городская поликлиника 7.
Рядом расположены:
Новосибирский государственный архитектурно строительный университет (Сибстрин);
Сибирский государственный университет телекоммуникаций и информатики;
Новосибирский Государственный Педагогический Университет.
В 3 остановках расположен Инюшенский бор с лыжной базой Буревестник с подъёмником и катком.
Быстрый выход на сделку.
Прямая продажа.
Один взрослый собственник.
Материнский капитал не использовался.
Подходит под любые формы расчетов.
Характеристики
- Тип недвижимостиНовостройки
- Населенный пункт Новосибирск
- Район Октябрьский
- Адрес Кирова, д.276
- Название ЖКЖК SMART AVENUE
- Корпус ЖКДом 2
- Срок сдачи год2023 г.
- Класс жильяКомфорт
- Тип домамонолит-кирпич
- Тип сделкипереуступка прав
- Стадия строительствадом построен, но не сдан
- Срок сдачи квартал4
- Тип продажи (сделки)Переуступка
- Статус квартирыКвартира
Задать вопрос
Вас также может заинтересовать:
ЖК «Сосны»
Заельцовская
- 1-к.квартира от 8 990 000
- 3-к.квартира от 11 900 000
Квартал «На Декабристов»
Речной вокзал
- Студия от 7 930 000
- 2-к.квартира от 14 080 000
- 3-к.квартира от 16 760 000
- 4-к.квартира от 31 690 000
Жилой дом "GRANDO" Дом №1
Берёзовая роща
- Студия от 6 850 000
- 1-к.квартира от 7 850 000
- 2-к.квартира от 8 800 000
- 3-к.квартира от 11 990 000
ЖК Сакура Парк Дом 1
Октябрьская
- 1-к.квартира от 8 650 000
