Продажа 3-к. квартира, 84.2 м², 3/10 эт.
Описание
В задатке! О КВАРТИРЕ
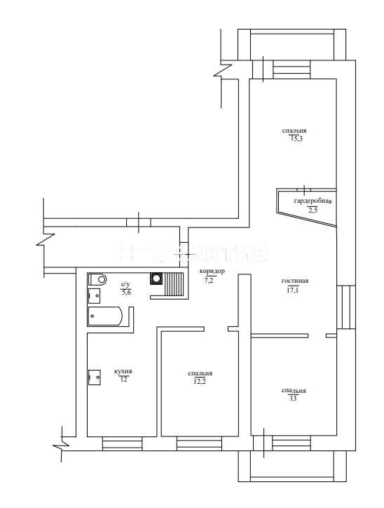
Комфортная планировка: коридор, три изолированные комнаты, проходная гостиная, гардеробная, совмещенный санузел с зоной сауны, две лоджии (6,9 м2, не учтены в указанной площади квартиры! Одна из лоджий утепленная, с теплым полом).
Во всей квартире сделан современный качественный ремонт, сделана звукоизоляция, теплый пол. Окна выходят на 3 стороны, целый день попадает солнечный свет.
Квартира просторная, теплая и светлая - заезжай и живи в удовольствие!
О ДОМЕ И ЛОКАЦИИ
Квартира расположена на 3 этаже 10-этажного нового кирпичного дома.
В шаговой доступности есть вся инфраструктура: школы, детские сады, колледжи, медицинские учреждения, Городской центр культуры и досуга (ГДК), разнообразные магазины (в т.ч. Бердский рынок), аптеки, пункты выдачи маркетплейсов, кафе и рестораны, детские и подростковые досуговые центры и иные объекты инфраструктуры для комфортной жизни. В пешей доступности также самый центр города, площадь Горького.
Остановка общественного транспорта по городу - ГДК и остановка маршруток до Новосибирска в нескольких минутах ходьбы, 15 минут пешком до Ж/д вокзала.
Квартира подойдет людям, которым важно жить в комфорте и иметь все необходимое для жизни «под рукой».
Звоните, чтобы записаться на просмотр!
Характеристики
- Тип недвижимостиКвартиры
- Населенный пункт Бердск
- Район городской округ Бердск
- Адрес Комсомольская, д.14
- Количество комнат3
- Год постройки дома2015 г.
- Общая площадь84.2 м²
- Жилая площадь57.6 м²
- Площадь кухни12 м²
- Этаж3
- Этажей в доме10
- Тип санузлаСовмещенный
- Тип балкона2 лоджии
- Высота потолков в метрах2.75 м.
- Тип домакирпичный
- Тип сделкиПрямая продажа
