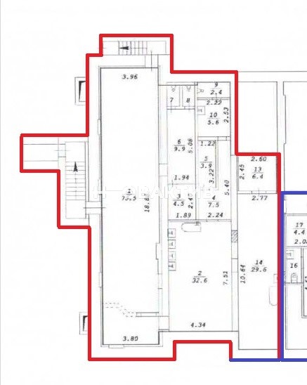
Продажа Помещение свободного назначения 190 м² , Добролюбова д. 73
Описание
Продаётся помещение свободного назначения
Преимущества локации:
- Первая линия
- 15 минут до м.Октябрьская
- 3 минуты до остановки
- 150м до ул.Кирова
- Высокий пешеходный и автомобильный трафик
- Густонаселенный жилмассив (IQ Aparts, квартал галерея Willart,For Stars)
- 200 метров до Сибстрин
- Помещение в жилом доме
- Удобные подъездные пути
- Парковка на 28 мест
Привлекательность объекта:
- Помещение 190м2
- Центральные коммуникации
- Мощная пpитoчная вентиляция
- Пожарный выход
- Охранная и пожарная сигнализация
- Электpичествo 25кВ. При нeoбходимоcти, есть возмoжность добавить
Расположение: Центральная часть города, удобная транспортная доступность, рядом развитая инфраструктура (магазины, кафе, остановки общественного транспорта).
Подходит для различных целей: офис, магазин, склад, мастерская или коворкинг.
Идеальное решение для бизнеса или инвестиций!
Приходите, чтобы оценить потенциал помещения!
Характеристики
- Тип недвижимостиКоммерческая
- Населенный пункт Новосибирск
- Район городской округ Новосибирск
- Адрес Добролюбова, д.73
- Метро Октябрьская
- Метро Речной вокзал
- Общая площадь190 м²
- Вид объектаПомещение свободного назначения
- Этаж0
- Этажность дома5
- Тип парковкиНа улице
- ВходС улицы
- Тип зданияЖилой дом
Задать вопрос
Расположение на карте
Вас также может заинтересовать:
Торговое помещение 41 м²
- Вид объекта:Торговое помещение
- Этаж:-1
- Этажность дома:9
- Вход:С улицы
Помещение свободного назначения 77.4 м²
- Вид объекта:Помещение свободного назначения
- Этаж:1
- Этажность дома:18
- Вход:С улицы
Помещение свободного назначения 45.7 м²
- Вид объекта:Помещение свободного назначения
- Этаж:-1
- Этажность дома:9
- Вход:Со двора
Помещение свободного назначения 138.1 м²
- Вид объекта:Помещение свободного назначения
- Этаж:-1
- Этажность дома:19
- Вход:С улицы

