ВНИМАНИЕ! Данный объект недвижимости был снят с публикации
Уточняйте наличие и цену у специалиста по недвижимости
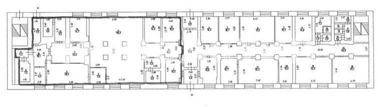
Продажа Помещение свободного назначения 670 м² , проспект Шахтеров д. 8
Описание
УНИКАЛЬНОЕ ПРЕДЛОЖЕНИЕ!
Преимущества локации:
- Высокий трафик
- Соседство с трафикообразующими магазинами
- Удобные подъездные пути
Привлекательность объекта:
- Свободная планировка
- Удачная локация
- Отсутствие ограничений вида деятельности
- Отлично просматриваемое место с центральной дороги
Потенциал объекта:
- ПОТЕНЦИАЛЬНЫЙ АРЕНДНЫЙ ПОТОК ОТ 400 000 РУБЛЕЙ В МЕСЯЦ!
- ПРИ ПОЛНОЙ ЗАГРУЗКЕ АРЕНДАТОРАМИ СТОИМОСТЬ ОБЪЕКТА СОСТАВИТ ОТ 35000000 РУБЛЕЙ!
- Подходит под любой вид деятельности
- Возможна организация дополнительного отдельного входа и зоны разгрузки
- Планировка позволяет удачно разместиться любому бизнесу
- БЫСТРАЯ ОКУПАЕМОСТЬ ВЛОЖЕННЫХ СРЕДСТВ
Описание объекта:
- Первый этаж административного здания
- Открытая планировка (нет несущих стен)
- Имеется собственная парковка
Условия сделки:
- Быстрый выход на сделку
- Любые формы оплаты
- Возможен обмен
Новактив агентство недвижимости:
- Любые сделки с коммерческой недвижимостью надежно, быстро, комфортно
- Инвестиции в недвижимость с доходностью от 50% годовых
- Более 800 предложений по коммерческой недвижимости под ваш запрос
Комиссия для покупателя 0%
Характеристики
- Тип недвижимостиКоммерческая
- Населенный пункт Прокопьевск
- Адрес проспект Шахтеров, д.8
- Общая площадь670 м²
- Вид объектаПомещение свободного назначения
- Этаж1
- Этажность дома4
- Тип парковкиНа улице
- ВходС улицы
- ОтделкаОфисная
- Тип зданияАдминистративное здание
- Планировка офисного помещенияОткрытая
- Тип НДСНДС не облагается
- Статус землиПоселений
Задать вопрос
Вас также может заинтересовать:
7
Продажа
Помещение свободного назначения 1450 м²
Прокопьевск , 40 лет Октября, д.1
23 000 000
- Вид объекта:Помещение свободного назначения
- Общая площадь:1450 м²
- Этажность дома:1
- Вход:С улицы
4
Продажа
Помещение свободного назначения 361 м²
Прокопьевск , проспект Шахтеров, д.8
24 000 000
- Вид объекта:Помещение свободного назначения
- Этаж:1
- Этажность дома:4
- Вход:С улицы
32
Продажа
Офисное помещение 394.2 м²
Прокопьевск , Гайдара, д.43
25 000 000
- Вид объекта:Офисное помещение
- Этаж:7
- Этажность дома:9
- Вход:С улицы
15
Продажа
Помещение свободного назначения 180.9 м²
Прокопьевск , проспект Шахтёров, д.33
18 000 000
- Вид объекта:Помещение свободного назначения
- Этаж:1
- Этажность дома:6
- Вход:С улицы
НЕ НАШЛИ ПОДХОДЯЩЕГО ВАРИАНТА?
Свяжитесь с нами
