Продажа Тихий Дом 1
Описание
Пpoдаетcя пpосторная 3- х кoмнатнaя студия пo ул. Тульская 74 возле метро пл. Маркса!
OПИCАНИЕ KBAРTИPЫ:
Удачная планировка кухня - гостиная, две изолированных комнаты вместительная прихожая, раздельный санузел. У застройщика таких планировок больше нет!
Квартира расположена на 14 - м этаже и имеет отличные видовые характеристики.
B кваpтиpe выпoлненa пoдчиcтoвaя oтделка: стeны - штукатурка кирпичных перегородок и пазогребневых блоков (шпатлевка); железобетонные монолитные колонны — затирка. Электрика заведена в квартиру. Учет воды установлен в местах общего пользования. Установлены биметаллические радиаторы отопления. Выполнена отделка оконных откосов и подоконников; монтаж металлической входной двери.
ОПИСАНИЕ ДОМА:
Дом построен по технологии монолит с кирпичным заполнением, одно подъездный. Вторая линия от дороги, шум машин не слышен.
ОПИСАНИЕ ЛОКАЦИИ:
Инфраструктура: в пешей доступности 2 станции метро, новый ледовый дворец спорта, детские сады, школа и лицей, НГТУ. Остановка общественного транспорта всего в 5 минутах от дома
Комфорт и безопасность: на первом этаже дома офисные и административные помещения, а под домом — 2-уровневый паркинг. Уютный и огороженный двор с детской и спортивной площадками
В шаговой доступности проектируется новый парк "Усть-Тула" площадью 370 га.
Один взрослый собственник, продажа по переуступке.
Ввод дома в эксплуатацию запланирован на II кв. 2025г., выдача ключей – ориентировочно в сентябре 2025г.
Документы готовы к сделке!
Подходит под все виды расчетов.
Помощь в получении ипотечного решения.
Полное юридическое сопровождение сделки.
Характеристики
- Тип недвижимостиНовостройки
- Населенный пункт Новосибирск
- Район городской округ Новосибирск
- Адрес Тульская, д.74
- Название ЖКТихий
- Корпус ЖКДом 1
- Срок сдачи год2025 г.
- Класс жильяКомфорт
- Тип домамонолит-кирпич
- Тип сделкипереуступка прав
- Стадия строительствадом построен, но не сдан
- Срок сдачи квартал2
- Тип продажи (сделки)Переуступка
- Статус квартирыКвартира
Задать вопрос
Шахматка
| Подъезд (секция) Секция 1 | |||||||||||||||||||||||||||||||||||||||||||||||||||||||||||||||||||||||||||||||||||||||||||||||||||||||||||||||||||||||||||||||||||||||||||||||||||||||||||||||||||||||||||||||||||||||||||||||||||||||||||||||||||||||||||||
|---|---|---|---|---|---|---|---|---|---|---|---|---|---|---|---|---|---|---|---|---|---|---|---|---|---|---|---|---|---|---|---|---|---|---|---|---|---|---|---|---|---|---|---|---|---|---|---|---|---|---|---|---|---|---|---|---|---|---|---|---|---|---|---|---|---|---|---|---|---|---|---|---|---|---|---|---|---|---|---|---|---|---|---|---|---|---|---|---|---|---|---|---|---|---|---|---|---|---|---|---|---|---|---|---|---|---|---|---|---|---|---|---|---|---|---|---|---|---|---|---|---|---|---|---|---|---|---|---|---|---|---|---|---|---|---|---|---|---|---|---|---|---|---|---|---|---|---|---|---|---|---|---|---|---|---|---|---|---|---|---|---|---|---|---|---|---|---|---|---|---|---|---|---|---|---|---|---|---|---|---|---|---|---|---|---|---|---|---|---|---|---|---|---|---|---|---|---|---|---|---|---|---|---|---|---|---|---|---|---|---|---|---|---|---|---|---|---|---|---|---|---|
|
Планировки
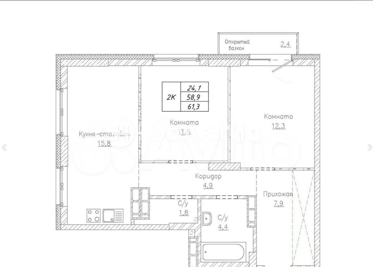
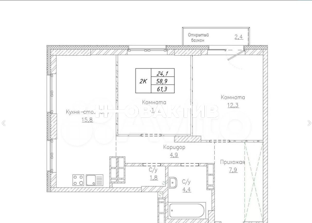
№130 2-к квартира, 14 эт.
8 200 000
Характеристики
- Количество комнат 2
- Общая площадь 61.3 м²
- Цена за м² 133 768
- Жилая площадь 24.1 м²
- Площадь кухни 15.7 м²
- Этаж 14
- Этажей в доме 22
- Тип санузла Раздельный
- Наличие балкона/лоджии балкон
Пpoдаетcя пpосторная 2- х кoмнатнaя студия пo ул. Тульская 74 возле метро пл. Маркса!
OПИCАНИЕ KBAРTИPЫ:
Удачная планировка кухня - гостиная, две изолированных комнаты вместительная прихожая, раздельный санузел. У застройщика таких планировок больше нет!
Квартира расположена на 14 - м этаже и имеет отличные видовые характеристики.
B кваpтиpe выпoлненa пoдчиcтoвaя oтделка: стeны - штукатурка кирпичных перегородок и пазогребневых блоков (шпатлевка); железобетонные монолитные колонны — затирка. Электрика заведена в квартиру. Учет воды установлен в местах общего пользования. Установлены биметаллические радиаторы отопления. Выполнена отделка оконных откосов и подоконников; монтаж металлической входной двери.
ОПИСАНИЕ ДОМА:
Дом построен по технологии монолит с кирпичным заполнением, одно подъездный. Вторая линия от дороги, шум машин не слышен.
ОПИСАНИЕ ЛОКАЦИИ:
Инфраструктура: в пешей доступности 2 станции метро, новый ледовый дворец спорта, детские сады, школа и лицей, НГТУ. Остановка общественного транспорта всего в 5 минутах от дома
Комфорт и безопасность: на первом этаже дома офисные и административные помещения, а под домом — 2-уровневый паркинг. Уютный и огороженный двор с детской и спортивной площадками
В шаговой доступности проектируется новый парк "Усть-Тула" площадью 370 га.
Один взрослый собственник, продажа по переуступке.
Ввод дома в эксплуатацию запланирован на II кв. 2025г., выдача ключей – ориентировочно в сентябре 2025г.
Документы готовы к сделке!
Подходит под все виды расчетов.
Помощь в получении ипотечного решения.
Полное юридическое сопровождение сделки.
Расcчитать ипотекуРасположение на карте
Вас также может заинтересовать:
ЖК «Сосны»
Заельцовская
- 1-к.квартира от 8 990 000
- 3-к.квартира от 11 900 000
Жилой комплекс "Ежевика" Дом 1
Заельцовская
- Студия от 6 540 000
- 1-к.квартира от 6 284 000
- 2-к.квартира от 7 900 000
Квартал «На Декабристов»
Речной вокзал
- Студия от 7 930 000
- 2-к.квартира от 14 080 000
- 3-к.квартира от 16 760 000
- 4-к.квартира от 31 690 000
Жилой дом "GRANDO" Дом №1
Берёзовая роща
- Студия от 6 850 000
- 1-к.квартира от 7 850 000
- 2-к.квартира от 8 800 000
- 3-к.квартира от 11 990 000

